ID
H164
Chambres
6
sdb
2
Property Size
Surface construite
228
Surface du terrain
200
Garage
si
Année de Construction
1930
MAISON DE VILLAGE à SANTANYI, à rénover près du centre
  • 850,000€

La description

MAISON DE VILLAGE à rénover à SANTANYI

 

Ancienne maison sur deux étages avec patio et garage, nécessitant des travaux de rénovation.

À 200 m du centre-ville et à proximité des commerces.

 

Inscrite au registre foncier en 1930, elle bénéficie d’une belle hauteur sous plafond et de carrelages d’origine.

 

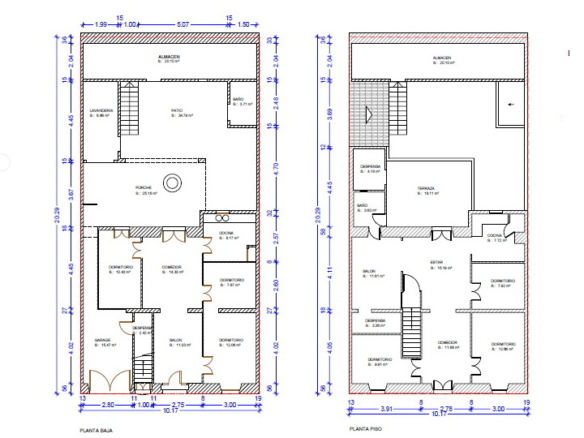
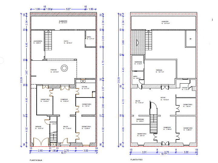
REZ-DE-CHAUSSÉE

2 salles, 3 chambres, cuisine et salle de bains.

Garage, véranda et plusieurs dépendances dans le patio.

 

PREMIER ÉTAGE

Appartement séparé, avec 2 salles, 3 chambres, salle de bains, cuisine et grande terrasse avec buanderie.

(Entrée indépendante du rez-de-chaussée.)

 

Superficie du terrain : 200 m²

Surface habitable selon le cadastre : 228 m²

Véranda : environ 30 m²

+ Dépendances

Des détails

Identifiant de la propriété H164
6 Chambres
2 sdb
SURFACE CONSTRUITE 228
Zone de terrain 200
si Garage
An 1930
Updated on décembre 2, 2025 at 1:40 pm

Informations de contact

casas
  • casas

Enquire About This Property

En soumettant ce formulaire, j'accepte Conditions d'utilisation